SLine

Mediteran
SLine

Brezskrbno bivanje.

Posodobljene mobilne hiše serije SLine, postavljajo nove standarde v tem cenovnem razredu. Nova zunanjost in notranjost, ki ponujata veliko več kot zgolj nastanitev, s popolnoma novimi tlorisi in funkcijami, ki bodo zadovoljili tudi najbolj zahtevne goste. Odlično razmerje med ceno in kvaliteto.

Zunanjost

Nov produkt v SLine seriji z enokapno streho predstavlja novo merilo. Moderno oblikovan z unikatnimi arhitekturnimi značilnostmi. Tu se s stilom srečata funkcionalnost in učinkovitost.


Zunanje lastnosti

SLine ponuja sodobno in elegantno nastanitev, zasnovano za večjo učinkovitost, z različnimi opcijami terase. Ustvarjena za daljše bivanje.

Notranjost

Style dizajn je še bogatejši in opaznejši. Sodobna in privlačna notranjost s ščepcem nepričakovanosti in mnogimi različnimi kombinacijami, vas bo zagotovo navdušila.

Notranje lastnosti

Notranjost SLine je zasnovana za udobno in brezskrbno bivanje. Vse je na pravem mestu, od elegantne kuhinje, do prostorne dnevne sobe, spalnic in kopalnic.

Načrti

Na podlagi naših izkušenj in strokovnosti smo razvili 5 standardnih tlorisov, ki bodo izpolnili vaša pričakovanja.


Legenda
85
Dolžina
4
Širina
F
Kuhinja
2
Spalnica
1
Kopalnica


Kuhinja/vhodna postavitev
B: Kuhinja zadaj
F: Kuhinja spredaj
C: Sredinska kuhinja
R: Kuhinja desno

Število spalnic
1: 1 spalnica
2: 2 spalnici
3: 3 Spalnice

Število kopalnic
1: 1 kopalnica
1T: 1 kopalnica + ločeno stranišče
2: 2 kopalnici

SLINE BASIC UNIJE

Več info
Number of beds
4+2

Number of bedrooms
2

Number of bathrooms
1+T

Length
6,50m

Width
4,30m

Height
3,30m

854 C21

Več info
Number of beds
4+1

Number of bedrooms
2

Number of bathrooms
1

Length
8,5m

Width
4,00m

Height
3,45m

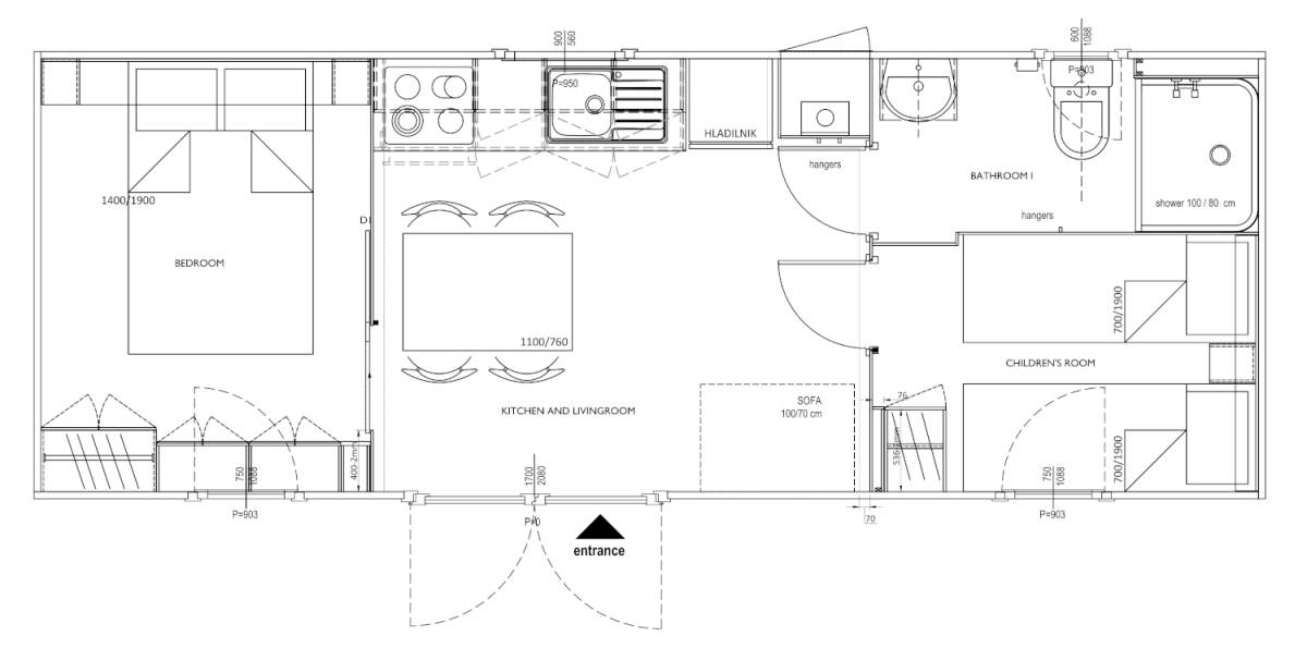
804 B21HC

Več info
Number of beds
4+1

Number of bedrooms
2

Number of bathrooms
2

Length
8,00m

Width
4,00m

Height
3,30m

804 F31T

Več info
Number of beds
6+1

Number of bedrooms
2

Number of bathrooms
1+WC

Length
8,00m

Width
4,00m

Height
3,30m

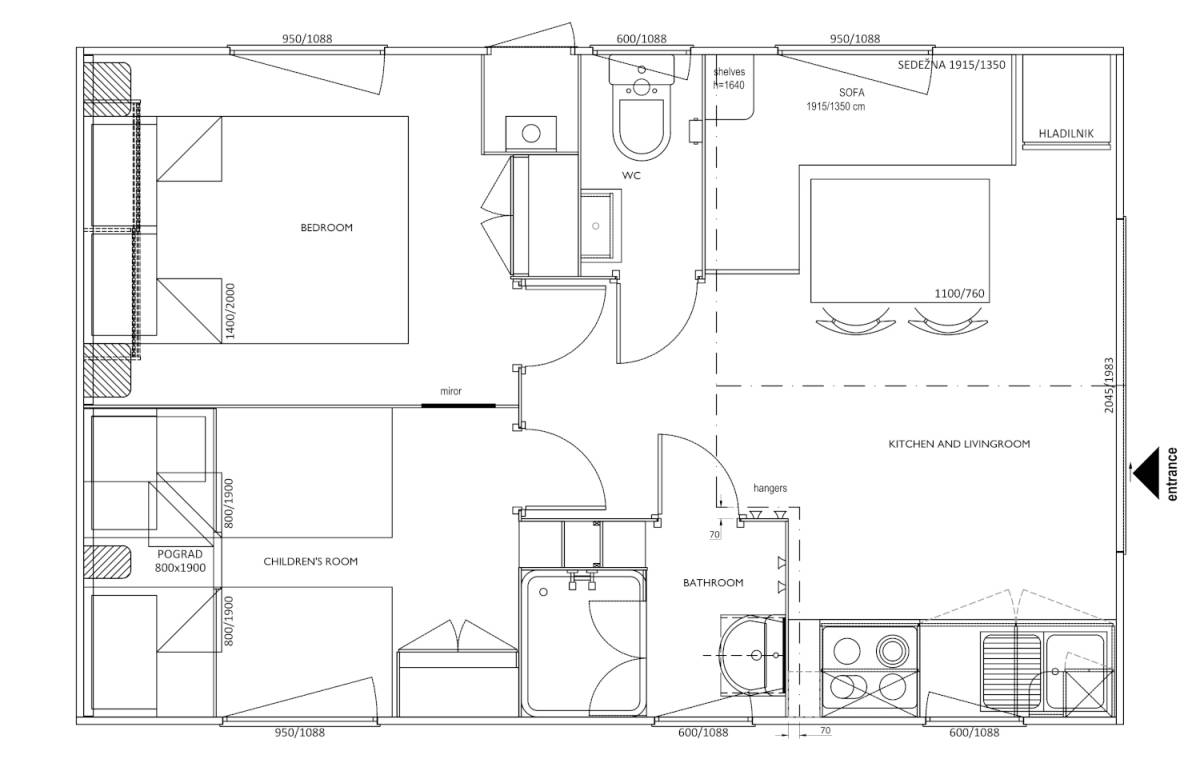
804 B22

Več info
Number of beds
4+1

Number of bedrooms
2

Number of bathrooms
2

Length
8,00m

Width
4,00m

Height
3,30m

754 F21

Več info
Number of beds
4+1

Number of bedrooms
2

Number of bathrooms
1

Length
7,50m

Width
4,00m

Height
3,30m

803 C21

Več info
Number of beds
4+1

Number of bedrooms
2

Number of bathrooms
1

Length
8,00m

Width
3,00m

Height
3,30m

Barve

Pohištvo & tekstili

Ocean

Ocean

Pearl

Pearl

Stopnja opreme

Paketi


  • Talne obloge AST z električnim talnim ogrevanjem kot opcijo.
  • Okna in vrata z višjo izolativnostjo (1,2 u/w)
  • Močnejša strešna konstrukcija (250kg/m2) in boljša izolacija strehe (100 mm).
  • Električni grelniki v vseh prostorih z grelcem za brisače v kopalnicah.
  • Izoliran in električno ogrevan vodovodni sistem.

  • Gasilni aparat
  • Ognjevarne odeje
  • Požarni detektor


Opcije


  • Glavni ključ

  • Sistem mehanske ključavnice

  • Vgrajene žaluzije na vseh oknih

  • Komarniki na vseh oknih

  • Balkonska vrata z varnostnim steklom polne velikosti

  • Modularna terasa in možnosti zunanje opreme

  • Sef
  • Kavč
  • Talne obloge AST
  • Dežni tuš
  • Dnevne zavese
  • Detektor dima
  • Stenski WC
  • Bide z mešalno pipo
  • Vgrajen odcejalnik
  • Mansarda ali pograd in spodnje ležišče
  • Adria Bluetooth Soundsystem ABS®
  • Ambientalna LED osvetljava v vseh prostorih
  • Varen električen sistem talnega gretja
  • Možnosti tekstilov kot blazin in posteljnih pregrinjal
  • Oblazinjene in dvižne postelje s prostorom za shranjevanje pod posteljo

  • Sušilec za lase
  • Mikrovalovna pečica
  • Steklokeramična kuhalna plošča
  • Vgrajen pomivalni stroj
  • Električni grelnik vode
  • Vgrajena električna pečica
  • 32-palčni LED TV s TV nosilcem
  • Klimatska naprava z izbiro "Klima Card" ali okenskih senzorjev