SLINE BASIC UNIJE 407

SLINE BASIC UNIJE 407
Na zalogi

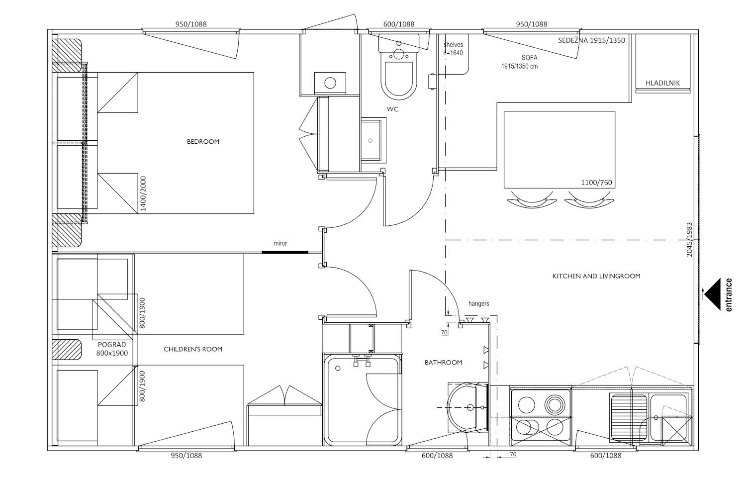
Posodobljene mobilne hiše serije SLine, postavljajo nove standarde v tem cenovnem razredu. Nova zunanjost in notranjost, ki ponujata veliko več kot zgolj nastanitev, s popolnoma novimi tlorisi in funkcijami, ki bodo zadovoljili tudi najbolj zahtevne goste. Odlično razmerje med ceno in kvaliteto.

Notranjost

Površina:
28,00 m2 (bruto)

Število postelj:
5+1

Spalnice:
2

Kopalnice:
1+T

Zunanji del

Dolžina:
6,50 m

Širina:
4,30 m

Višina:
3,45 m

Razpored

Fasada

Več informacij

Tip kupca je obvezen!
Polje ime je obvezno!
E-poštni naslov je obvezen!
Lokacija dostave je obvezna!
Sporočilo je obvezno!
Sprejmite pogoje